宋仁宗遇刺的真相究竟是什么样的 真的是一场“宫心计”的计谋吗
复制2024-12-15 08:00:21
71
宋仁宗遇刺的真相是什么样的,这是很多读者都比较关心的问题,接下来就和各位读者一起来了解,给大家一个参考。
以北宋仁宗年间为历史背景的评书小说中,经常出现侠客或盗贼出入皇宫的情节。如《三侠五义》中锦毛鼠白玉堂进皇宫杀死太监郭安,并且留下诗句;《白眉大侠》中小北斗金奎亮进皇宫盗取国宝,惊吓皇帝。那么,在宋朝,真有人在皇宫刺王杀驾吗?
答案是:真的有人在皇宫刺王杀驾,刺杀对象就是宋仁宗赵祯。
宋仁宗庆历八年(公元1048年)闰正月十八日夜,赵祯在曹皇后宫里安寝。突然从福宁殿方向传来巨大声响,赵祯就想出去看看是怎么回事。宦官何承用报告说,是“乳妪殴小女子”。曹皇后不愧是将门虎女(她的祖父是北宋开国大将曹彬,父亲曹玘曾任尚书虞部员外郎,叔伯们也是武将),根据声音断定这是一场图谋刺杀皇帝的事变。她立即训斥何承用;“贼在殿下杀人,帝且欲出,敢妄言耶?”
事实果然如此,这天夜里,崇政殿亲从官颜秀、郭逵、王胜、孙利四个人“杀军校,劫兵仗,登延和殿屋”,进入皇宫大内。或许他们并不知道皇帝具体在哪个房间,所以就在福宁殿砍伤了宫人的胳膊,发出巨大声响,试图引起混乱,以便找到皇帝。

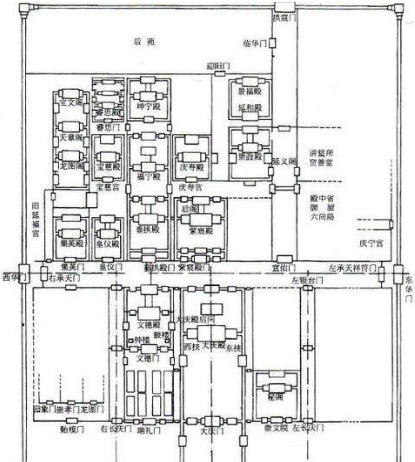
北宋皇宫平面图,可以看出崇政殿、延和殿、福宁殿的位置
曹皇后临危不乱,一方面派人赶快去叫都知(隶属殿前司的武官)王守忠率兵前来护驾,一方面派宦官提着水紧跟刺客,一旦刺客放火,就赶快灭火。为鼓舞宦官们的斗志,曹皇后亲自剪掉他们的头发作为标记,说:“贼平加赏,当以汝发为证。”王守忠很快带兵赶到,颜秀、郭逵、孙利当场被杀。王胜躲藏在宫城的北楼,“经日乃得,捕者即支分之”。
事变暂时得以平息,接下来就应该彻查此案。但耐人寻味的是,赵祯对此案的态度似乎十分暧昧,使得案件疑点重重。
首先,对这件惊天大案秘密调查,低调处理。案发后,朝中大臣对此案的态度形成截然相反的两派意见。一派以枢密使夏竦为首,认为这个案子涉及宫廷秘密,不宜大张旗鼓地查,“不可滋蔓,使反侧者不安。”另一派以参知政事丁度为首,认为这个案子事关社稷安危,应该“付外台穷治党羽”。两派相争不下,最终赵祯采纳了夏竦的意见。
夏竦画像
其次,对宿卫宫廷的几个官员都宽大处理。本来,皇帝遇刺,负责守卫的官员都有失职之罪,赵祯却不顾大臣的激烈反对,对涉事的官员贬官外放了事。
最后,对临危不乱处置得当的曹皇后不置一词,却说自己宠爱的张美人“有扈跸功”。夏竦揣测到赵祯的意图,就“倡言宜讲求所以尊异之礼”。宰相陈执中装聋作哑。翰林学士张方平引用西汉冯婕妤为救汉元帝舍身挡猛兽,也没有“尊异”的事例,陈执中才明确表态,否定了夏竦的意见。
综上所述,有人认为这起案件是“宫心计”,是一些人为了迎合赵祯宠爱张美人的心理,选择皇帝住在皇后宫中的时候,导演出的一幕惊险大戏。目的是构陷皇后,为张美人取而代之创造条件,或许赵祯本人也参与其中。也有人认为这场刺杀是贝州兵变的继续,毕竟此时贝州兵变刚刚平定,兵变的首领王则尚未遇害,颜秀等四人或许是王则等人在宫里发展的内应。
无论怎样,因为史料缺乏,案件背后的真相已经永远湮没在历史的尘埃中了。
参考文献:
毕沅:《续资治通鉴》卷四九
《宋史慈圣光献曹皇后列传》
免责声明:以上内容源自网络,版权归原作者所有,如有侵犯您的原创版权请告知,我们将尽快删除相关内容。